本次為微軟研發中心設計方案,空間本身是封閉式的,但辦公桌造型非常開放,沒有工作臺面板隔開,它們具有高度移動性,允許團隊隨意配置出他們所需要的組合。
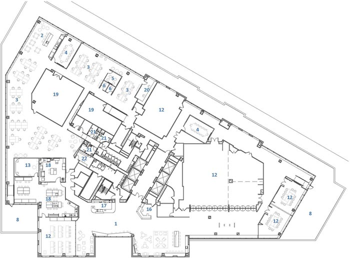
▼一層平面

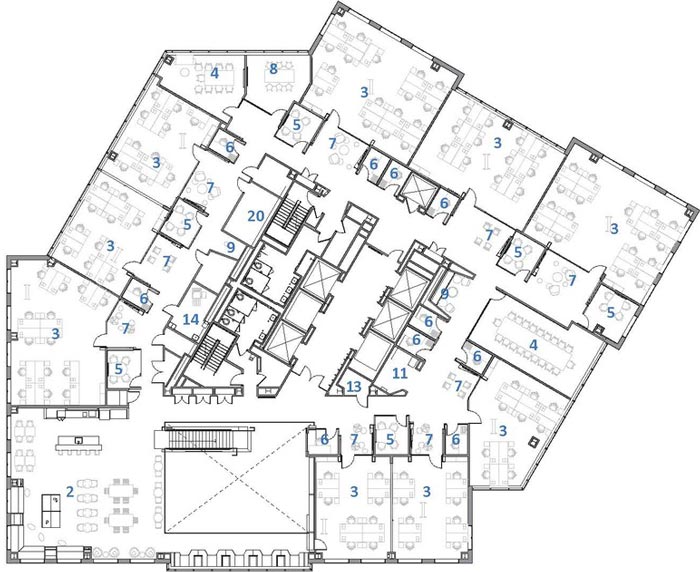
▼十層平面

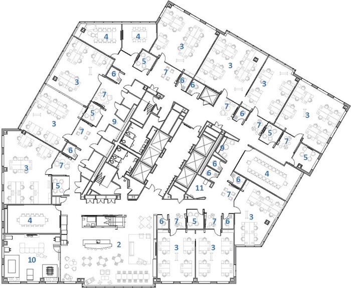
▼十一層平面

▼十五層平面

▼十六層平面

▼前臺

▼大廳

▼電梯間

▼過道

▼辦公區

▼交流區

▼交流區

▼獨立辦公

▼獨立辦公

▼討論區

▼休閑區

▼休閑區

▼研發區

▼吧臺

本次微軟研發中心設計方案介紹結束,空間本身是封閉式的,但辦公桌造型非常開放,沒有工作臺面板隔開,它們具有高度移動性,允許團隊隨意配置出他們所需要的組合。