下文續接:精品酒店深化設計施工圖(1)
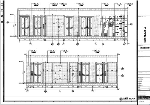
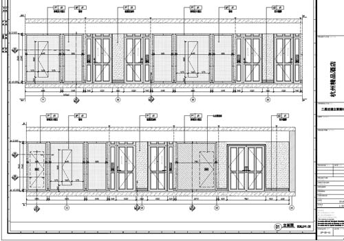
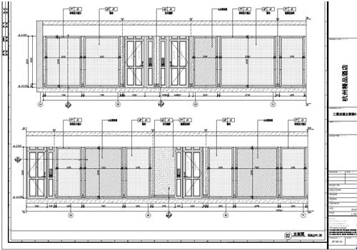
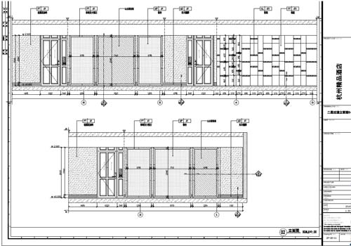
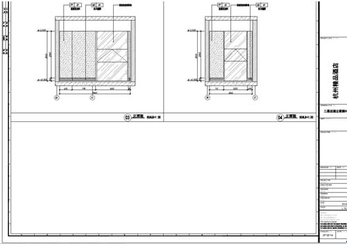
2-3層過道立面和刨面圖:
二層過道立面圖01

二層過道立面圖02

二層過道立面圖03

二層過道立面圖04

二層過道立面圖05

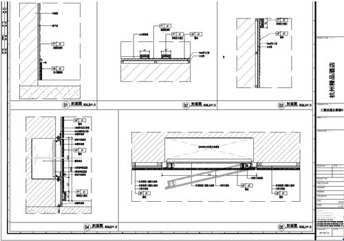
二層過道刨面圖01-05

門表面類型:
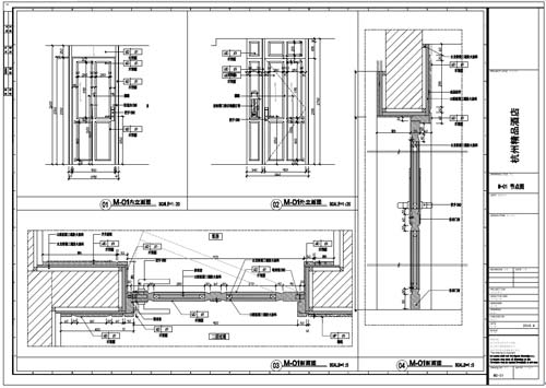
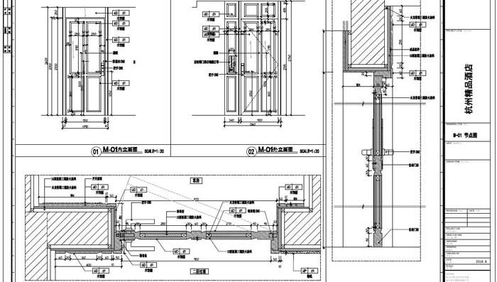
01號門內、外立面刨面圖01-04

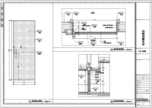
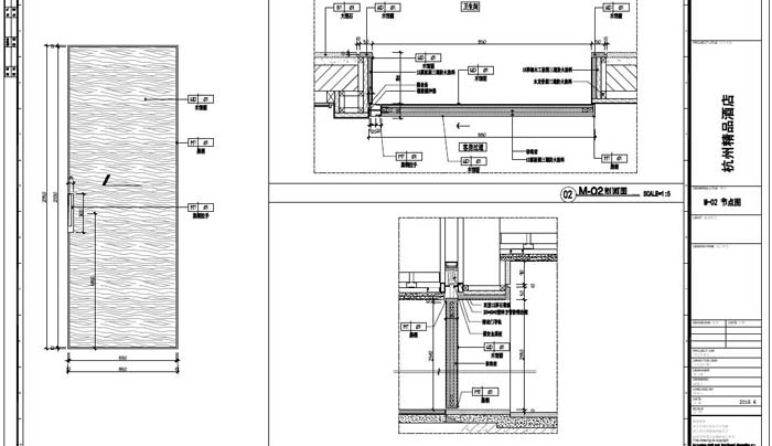
02號門內、外立面刨面圖01-04

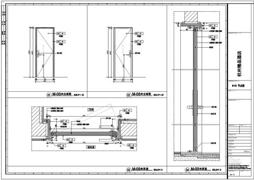
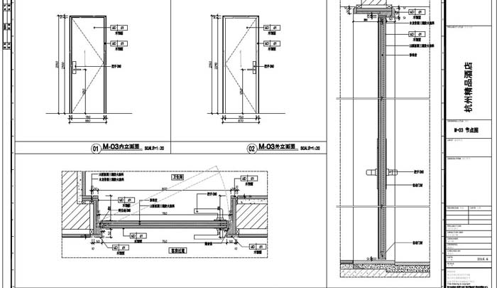
03號門內、外立面刨面圖01-04

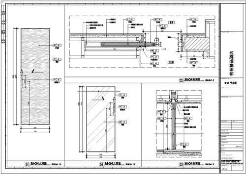
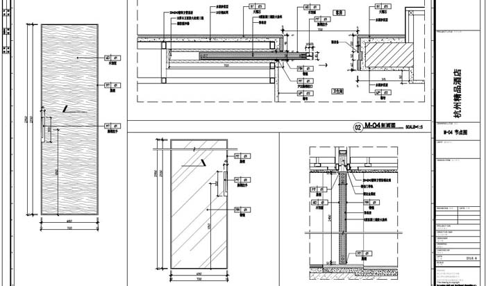
04號門內、外立面刨面圖01-04

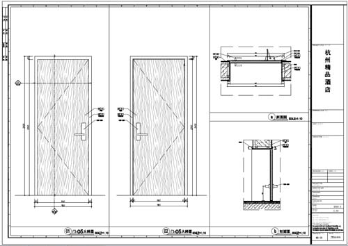
05號門內、外立面刨面圖01-04

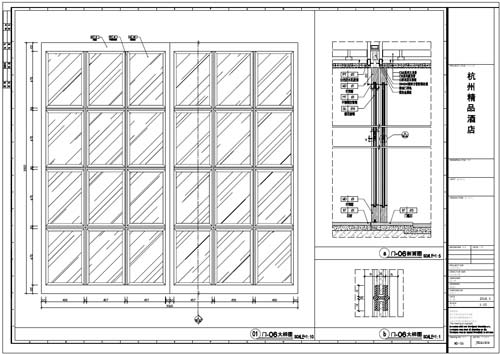
06號門內、外立面刨面圖01-04
